开云网页版登录入口

《工业门》国家标准图集起草单位  

服务热线: 400-699-3258
15062688099
Newhb新恒邦拥有10位特种作业持证技术工程师
怎么判断挡烟垂壁的质量好坏?你要了解的10条判断标准
返回列表 来源: 发布日期: 2020.06.26 浏览次数:
怎么判断挡烟垂壁的质量好坏?上一篇文章小编简单给大家总结了一下,由于消防对活动式挡烟垂壁有附加的要求,小编汇总了一下,给大家做个参考。

以下10条判断,让你了解 怎么判断挡烟垂壁的质量好坏以下内容是在电动挡烟垂壁调试完成后检测的。

1.活动式挡烟垂壁驱动装置外观应完好,不应有裂纹、变形,所有紧固件应紧固牢靠,不应有松动现象。挡烟部件表面不应有裂纹、压坑、缺角、孔洞及明显的凹凸、毛刺等缺陷。金属材料的防锈涂层或镀层应均匀,不应有斑剥、流淌现象。
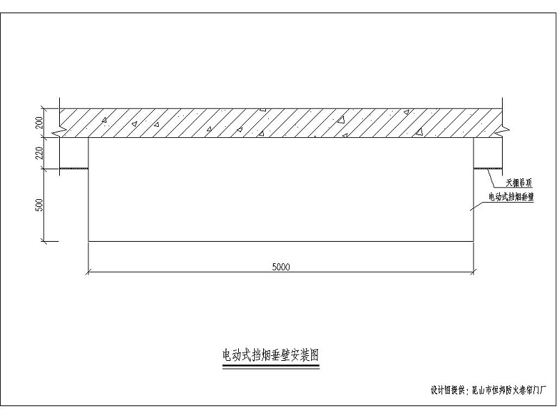
活动式挡烟垂壁安装效果图
2.活动式挡烟垂壁的表面垂直方向垂手(5 ± 1)m/s风速作用时,其垂直偏角不应大于15°

3.系统主电源断电时,活动式挡烟垂壁应能自动运行到挡烟工作位置 

4.电动挡烟垂壁从初始安装位置自动运行到挡烟工作位置的上、下限位时,其运行速度不应小于0.07m/s,而且总运行时间不应大于60s

5.应与相应的感烟火灾探测器联动,当探测器报警后,挡烟垂壁应能自动运行到挡烟工作位置。

6.接收到消防联动控制信号后,挡烟垂壁应能自动运行到挡烟工作位置。

7.控制器应能接受来自点型感烟火灾探测器的报警信号,发出声光指示信号,并控制挡烟垂壁下降到挡烟工作位置。
电动挡烟垂壁
8.控制器应能接收来自消防联动控制设备的控制信号,在3s内发出控制挡烟垂壁完成相应动作的信号,发出声光指示信号,并控制挡烟垂壁完成相应动作。

9.控制器应能将挡烟垂壁所处的正常安装位置(上限位)或挡烟工作位置(下限位)信息反馈到消防联动控制设备。

10. 活动式挡烟垂壁应能承受1000次循环启闭运行试验,试验后,挡烟垂壁应能正常工作,直径为(6 ± 0.1)mm 和截面尺寸(15 ± 0.1)mm x (2 ± 0.1)mm的探棒不能穿过挡烟部件。


怎么判断挡烟垂壁的质量好坏?你了解了吗?由于电器设备,偶尔也会有残次品,可及时与厂家更换。如果在调节限位或在挡烟垂壁安装过程中有任何疑问,可随时与我司挡烟垂壁专员张小姐联系15050281525(微信同号),或登录我司官网www.mashamapenzi.com了解更多。

【相关推荐】

咨询热线


400-699-3258
15062688099